|
Marina Finger 5mtr x 1mtr
Part # PONTOON-840
Including 2 x 900 Litre floatation modules
F27 kiln dried 150 x 50 Hardwood frame
F27 kiln dried 35mm Hardwooddecking
All stainless steel and aluminium hardware.
4 x 300mm cleats and large buffer 3 sides.
a4-0840 Marina Finger 5mtr x 1mtr
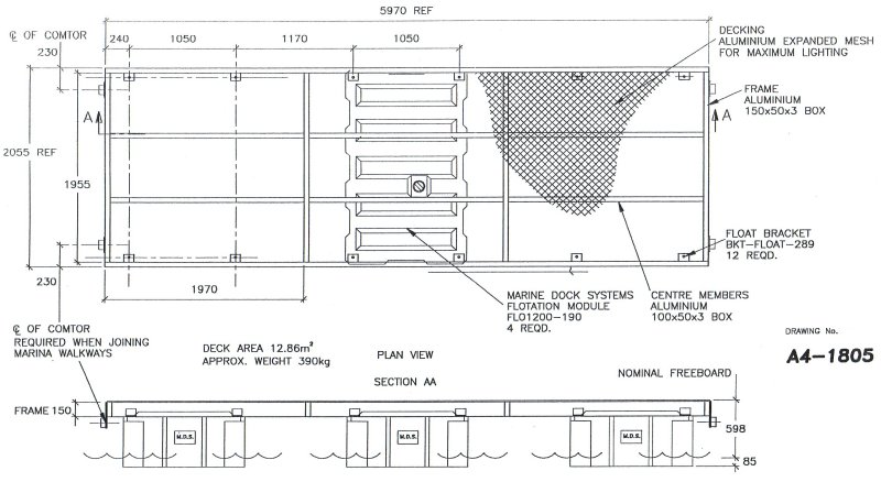
Marina Finger 9.6mtr x 1.3mtr
Part # PONTOON-1852
Including 4 x 900 Litre floatation modules
Fully welded aluminium frame
F27 kiln dried 150 x 50 Hardwood frame
F27 kiln dried 35mm Hardwooddecking
All stainless steel and aluminium hardware.
4 x 300mm cleats and large buffer 3 sides.
a4-1852 9.6mtr x 1.3 mtr - Alloy frame |
|

5 Mtr shown with comtor conection plates

9 Mtr shown with PVC D Buffer
|